点击: 4112 次 来源: 美国室内设计中文网 时间: 2025-07-30
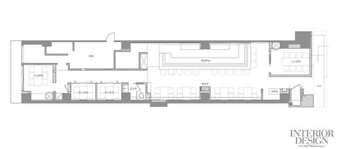
餐厅进深30米,狭长、深邃的室内空间利用轴线将板前区与散座区分布在左右两侧。
Stretching 30 meters in depth, the long, narrow interior unfolds along a central axis that flanks the counter bar on one side and the open dining area on the other.

板前吧台长9米,可同时落座13人。餐厅无主灯设计,吧台墙面和顶面房梁设置和纸灯箱点亮空间。灯箱兼具照明和美观功能,舒缓的光影效果搭配工艺纹理增强空间感染力。
The counter bar is 9 meters long and can seat 13 people at a time. Devoid of a central chandelier, the restaurant is lit by washi lightboxes recessed into the counter’s wall and the overhead beams. These fixtures serve both to illuminate and to adorn, their gentle glow and crafted texture weaving a soft, tactile atmosphere that deepens the space’s emotional resonance.



延展至备餐台的散座区以朴素的自然肌理搭配和纸灯箱和艺术装饰,体现餐厅返璞归真的空间氛围。
The open dining area pairs raw, natural textures with washi lightboxes and curated artworks, underscoring the restaurant’s return-to-origin ambience.


餐厅强调原生材质本身的属性和美感,我们选用石材、夯土、原木等自然古朴的材料体现炭火割烹的“烟火气”。
The restaurant emphasizes the properties and aesthetics of the raw materials themselves, we use stone, rammed earth, and untreated timber and other natural and rustic materials to embody the plain vibe.
随着动线深入,一条静谧、幽暗的走廊通向包间区域。
As the path deepens, a hushed, dim corridor ushers guests toward the private rooms area.

包间墙面采用暗纹艺术壁布,搭配艺术照明和花艺装饰营造更加私密、僻静的就餐环境。
The private rooms are wrapped in subtly textured artistic wallcovering, complemented by sculptural lighting and floral accents to create an even more secluded and intimate dining environment.





未经版权所有人明确的书面许可,不得以任何方式或媒体翻印或转载本网站的部分或全部内容
of this website is subject to its terms use.
京ICP备10023688号-2 京公网安备11010102000367号