点击: 4337 次 来源: 时间: 2025-09-29
出处:【居上LIFENESS】



















































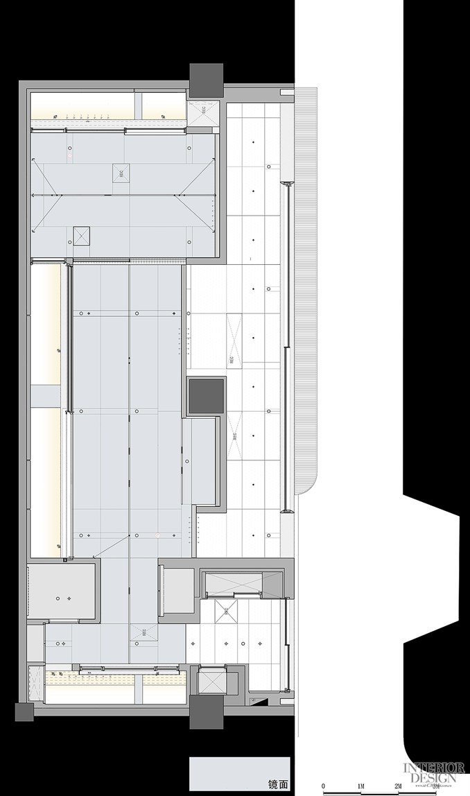
项目名称|欧的极窄门窗展厅
项目地址|中国 广州罗浮宫
项目面积|120㎡
总 设 计|赵睿
设计团队|叶增辉 黄志彬 李龙君 危从全 王卓豪/ V2GETHER纬图
照明设计|光合共筑
艺术顾问|邓猗夫
花艺装置|陈淽瑜
项目摄影|李永茂/铅影文化 伍启雕 / V2GETHER纬图
文字编辑|V2GETHER纬图
主要材料|贵州米黄石/蜂窝超白银镜/橡木饰面
绘画艺术《企业家的反面是哲学家及他的禅室》
195cmx200cm/布面丙烯/2024年|邓猗夫
未经版权所有人明确的书面许可,不得以任何方式或媒体翻印或转载本网站的部分或全部内容
of this website is subject to its terms use.
京ICP备10023688号-2 京公网安备11010102000367号