点击: 5712 次 来源: 美国室内设计中文网 时间: 2025-07-29
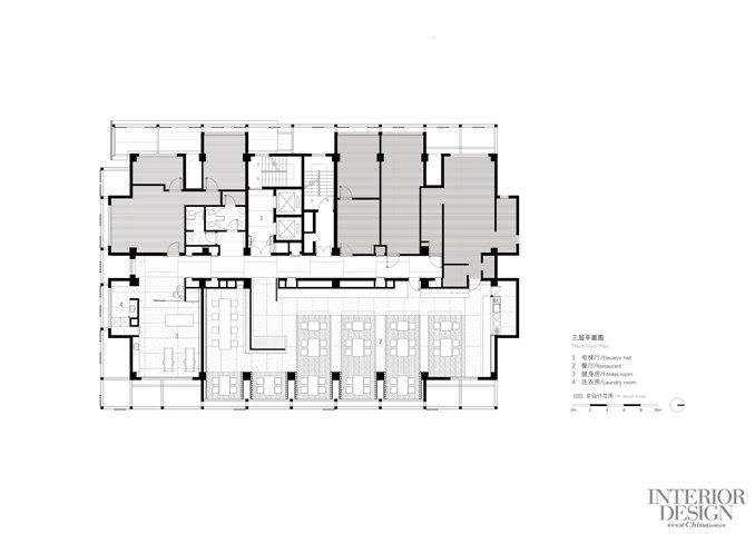
餐厅运用先抑后扬的空间营造,客人从昏暗电梯厅步入餐厅前厅,利用悬挂水磨石墙底部引光,客人随之转入明亮就餐区,窗外的树林景观从而豁然呈现。低矮层高的缺点通过强化梁墙连续感、铺装划分及吊顶限定巧妙化解,并且将大空间切分为不同就餐区。室内色彩延续立面,窗边嫣红水泥质感的天花吊顶衬托窗外自然,辅以深色木格栅营造静谧就餐氛围。靠窗实墙划分空间并隐藏柱子形成取景框,同时辅以镂空格栅削弱厚重感。










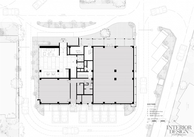
名称:深圳湾斐瑞酒店改造
地址:深圳南山区
面积:6200㎡
竣工时间:2024
参与设计师:曾冠生(主持建筑师)、陈春建、朱梓坚、罗文国、林白、禹淼
使用材料:玻璃砖、水磨石、多层实木复合板
未经版权所有人明确的书面许可,不得以任何方式或媒体翻印或转载本网站的部分或全部内容
of this website is subject to its terms use.
京ICP备10023688号-2 京公网安备11010102000367号