English  |  E-newsletter

您当前的位置:首页 » 设计动态 » 设计资讯 »比利时kempart loft公寓设计

比利时kempart loft公寓设计

点击: 31469 次 来源: designboom 时间: 2013-07-09

 

  为了满足业主对精密工程的浓厚兴趣,当地建筑事务所dethier architectures在位于比利时的一座重新设计的loft公寓中插入了一个高科技构筑物。
 
  建筑师的灵感源于20世纪70年代的一场运动,将小型和中型工业场地转化为住宅单元。通常,这种类型的改建都流于表面——一种陈旧粗糙的处理手法设计出的与当代不相符的生活方式。虽然有很多人都注意到了这个问题,但对于loft设计先入为主的观念却无法立即消除。建筑师在这个设计中提出了大胆而又困难多多的美学选择,设计主要以空间布局、功能和感知性为主。

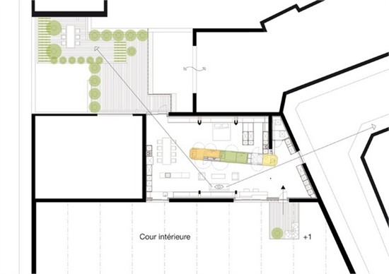
  业主是一对没有孩子的夫妇,他们要在废弃的工业面包厂创造一个居住空间。首先,建筑师在厂房中开发出尽可能多的房间,拆除连接梁和用设置在脊梁上的金属板加固椽子结构。最终设计完成的是一个154平方米的开放空间,内置一个圆形的模块,两间卧室、储藏间、卫生间和采暖通风系统都包含在内。
 
  这个封闭的圆形空间划分了室内格局,为业主提供了多种功能,创造了一系列空间氛围。从入口开始,空间序列依次是门厅、办公室、休息厅、厨房、餐厅、卧室和更衣室。休息厅位于公寓南侧,卧室在北面。

  圆形模块表面覆盖了一层铝板,带有蒸汽拖车的独有的空气动力学美感。室内三个舷窗玻璃采用了比利时艺术家jean gilbert建议的饱和色调。以白色为主的室内空间促进了间接光线的照射,突出了圆形模块的磨砂铝表皮。干净的线条和简洁的色调创造了一种失重感——低调而高科技的家具设备又加强了这一感觉。建筑师仔细的推敲了落地窗和视线的位置——居住者可以从室内俯瞰街道景色或是走到宽敞的露台上。露台几乎是居住空间的两倍,让居住者可以直接与邻里建立联系。

 

分享到: 分享到新浪微博 分享至腾讯微博 分享到QQ空间 分享到人人网 分享到开心网

相关文章

关于IDchina  |  联系我们  |  招聘信息  |  投稿

未经版权所有人明确的书面许可,不得以任何方式或媒体翻印或转载本网站的部分或全部内容
of this website is subject to its terms use.
京ICP备10023688号-2   京公网安备11010102000367号