点击: 30573 次 来源: 美讯在线—装饰中国网 时间: 2013-06-01
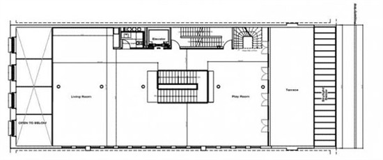
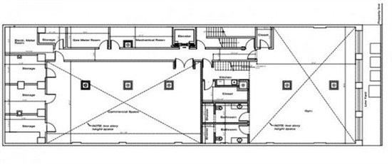
生活奢华舒适就必定有浮有沉,丰富多彩。如果你一层一层走过这栋三层楼的公寓,你的体验会更深。这栋精美繁复的纽约特里贝克公寓可谓将光线、空间以及色彩都运用发挥到极致的典范。公寓坐落在你纽约特里贝克一座19世纪60年代的石灰岩大厦的顶层,占地13,500平方英尺。整个空间包括四间卧房以及六间浴室,室内原始而生动的铸铁圆柱支撑着高达12-15英尺的天花板,给人以强烈的视觉震撼。起居空间贯通这栋大厦的4、5、6层以及屋顶及露台区域。一道大气的玻璃楼梯穿透阁楼中央部分,让阳光倾泻而下,照耀到每一个楼层。建筑的底层作为新增的健康娱乐空间,一个私人健身房以及半个篮球场。













未经版权所有人明确的书面许可,不得以任何方式或媒体翻印或转载本网站的部分或全部内容
of this website is subject to its terms use.
京ICP备10023688号-2 京公网安备11010102000367号