点击: 30444 次 来源: idzoom 时间: 2013-01-15
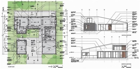
这是一座位于美国佛罗里达州的Barrier Island House,靠近海滨,是由Sanders Pace Architecture负责的一个住宅项目。设计师进行了一个高效的规划布局,大量的玻璃的使用加大了室内空间的透明度和通透性。












未经版权所有人明确的书面许可,不得以任何方式或媒体翻印或转载本网站的部分或全部内容
of this website is subject to its terms use.
京ICP备10023688号-2 京公网安备11010102000367号