English  |  E-newsletter

您当前的位置:首页 » 设计动态 » 设计资讯 »包头少年宫与图书馆——城市公共性的建筑表达

包头少年宫与图书馆——城市公共性的建筑表达

点击: 31888 次 来源: goood 时间: 2012-11-12

 

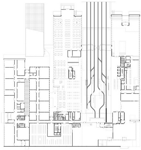
  新的包头少年宫和图书馆项目位于内蒙古包头市稀土高新区,作为一个建筑群,占地面积和建筑面积都不大,甲方对我们所提出的要求实际上也仅限于一些具体的使用功能,项目基地中间有一条市政路穿过,将基地人为的分成东西两个地块。

  设计的灵感来自于内蒙古大草原的起伏延绵的特殊地貌特征,场地自东向西形成了四百余米巨大的跃动曲线,整个建筑群就像从地面生长出来一样。图书馆和少年宫曲线型的退台设计,最大程度地促进了使用者、 公共广场和建筑之间的互动。由室外延伸至室外的中庭最大程度地导入阳光,开放式的楼梯和连廊以及延伸进两栋建筑内部的流线型绿化区域和铺装部分,增强了空间上的视觉连贯性,为人们提供了一个充满戏剧感的模糊空间。
 
  新的图书馆、少年宫的外立面运用了多种材料:石材、复合生态 板、铝型材和预嵌玻璃砖混凝土挂板等,各种材料特征被高度地协调在同一个语境下,加强了他们之间的整体性与交融感。同时它们又彼此独立, 根据其各自不同的功能,图书馆集中式大空间少年宫多为单元式小空间, 结合中央公共广场产生了不同的形式特征。对于少年宫来说,内部C型院落与中心公共广场组成了一个环形交流空间,并且在环形的空间界面上通过不同高度、不同色彩以及不同体块的造型进行视线引导,产生出适合儿童嬉戏游玩的各个平台。而中心广场作为一个虚空间正好能衬托出图书馆的 体积感,站在中心广场之上,迎面而来的是图书馆西侧主立面不同角度的 石材缓坡,它们以一种热情开放的姿态呈现着,向城市传递着强烈的场域公共性。
 

分享到: 分享到新浪微博 分享至腾讯微博 分享到QQ空间 分享到人人网 分享到开心网

相关文章

关于IDchina  |  联系我们  |  招聘信息  |  投稿

未经版权所有人明确的书面许可,不得以任何方式或媒体翻印或转载本网站的部分或全部内容
of this website is subject to its terms use.
京ICP备10023688号-2   京公网安备11010102000367号